Reconstruction of the Atelier Brancusi
Recessed in the Place Beaubourg, just in front of the Centre Pompidou, this small building hosts a permanent exhibition of the works of sculptor Constantin Brancusi.
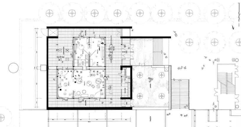
The major challenge of this project was to reproduce the exact layout of the artist’s works as they had been displayed in his original studio before he left them to the French government.

The atelier replicates the layout, the volume and the light of the original studio, but is housed in a larger, square, flat-roofed pavilion. Glass replaces solid walls to enable visitors to walk around the outside of the studio within an enclosed circulation space.
The whole building is further protected from the busy piazza immediately outside by a walled planted courtyard.





Details on Foundation website
Project Details
Status
Client
Centre Georges Pompidou
Design
Renzo Piano Building Workshop, architects
Design Team
B. Plattner (partner in charge), R. Self (architect in charge), R. Phelan with J. L. Dupanloup, A. Gallissian and C. Aasgaard, Z. Berrio, C. Catino, P. Chappell, J. Darling, P. Satchell
Consultants
GEC Ingéniérie (structural and electrical engineering, cost control); INEX (HVAC); Isis (car parking)
